Многофамилна жилищна сграда “Витоша Резидънс”
Площ:
4931 кв.м
Локация:
София, България
Фаза:
Работен проект
Етап:
Незавършен
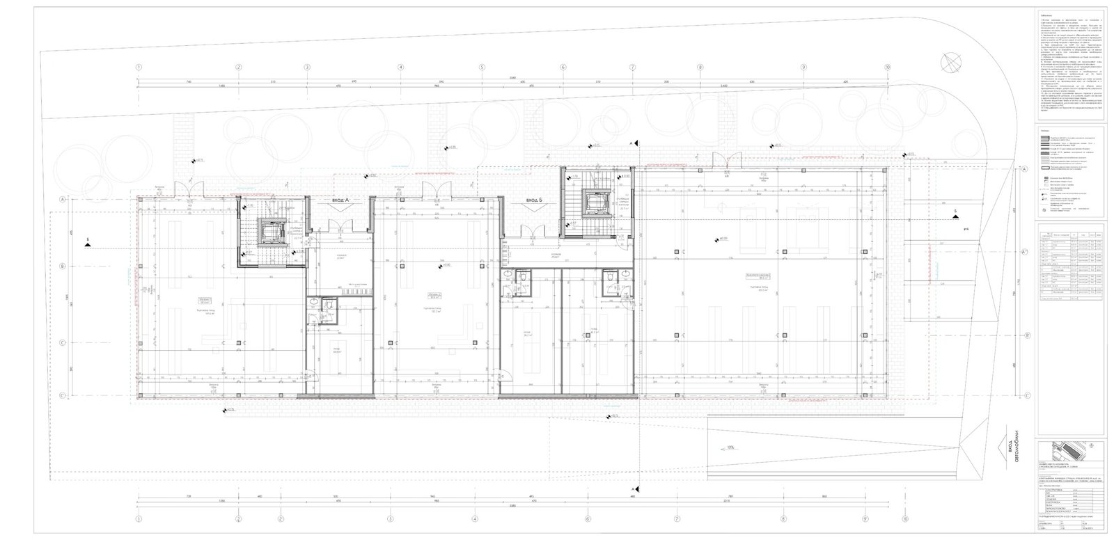
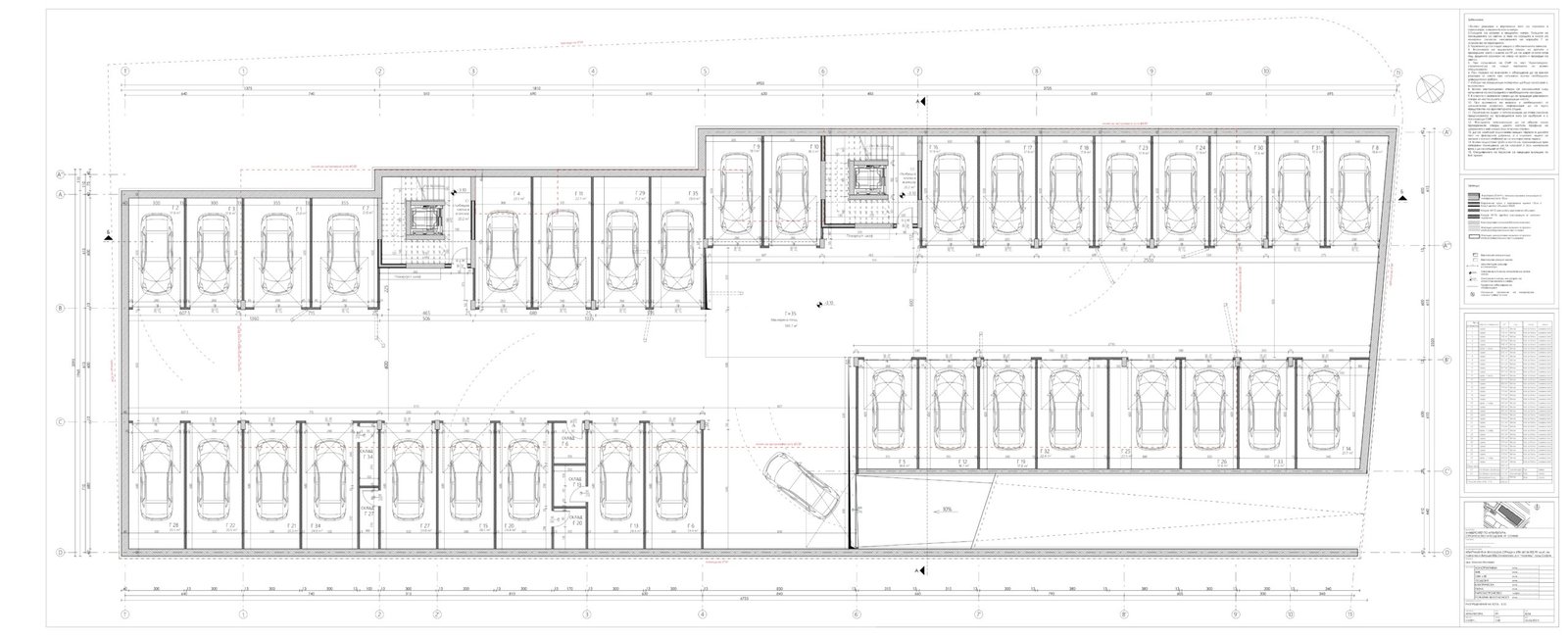
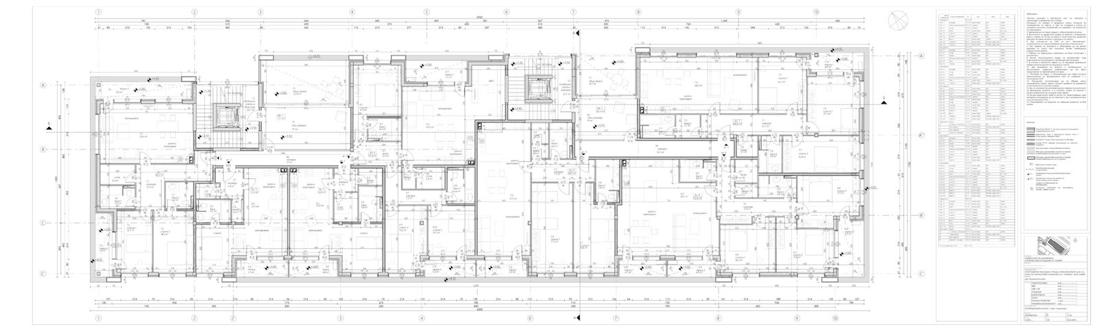
Многофамилна жилищна сграда с търговски обекти на първи надземен етаж и подземни гаражи, разположена в кв. 41 по плана на м. Витоша – ВЕЦ Симеоново, район „Лозенец“, гр. София. Проектирана като висок клас жилищна среда, сградата предлага разнообразни по площ и типология апартаменти, всеки с предвидено паркомясто в подземния гараж. Обезпечена е достъпна среда за хора в неравностойно положение. Всички строително-монтажни дейности са съобразени с действащото законодателство, като се залага на висока енергийна ефективност, устойчивост и комфорт.
Предвидена е възможност за бъдещо газифициране и интеграция на възобновяеми енергийни източници.








Вдъхновихме ви?
