Ваканционни вили „Hillside Villages“

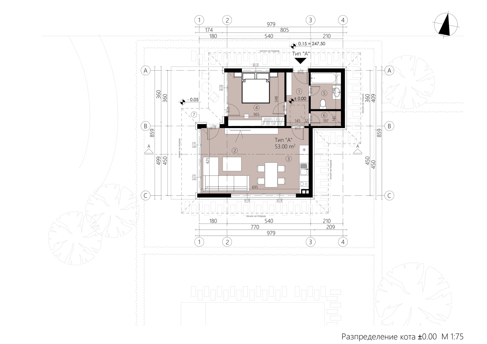
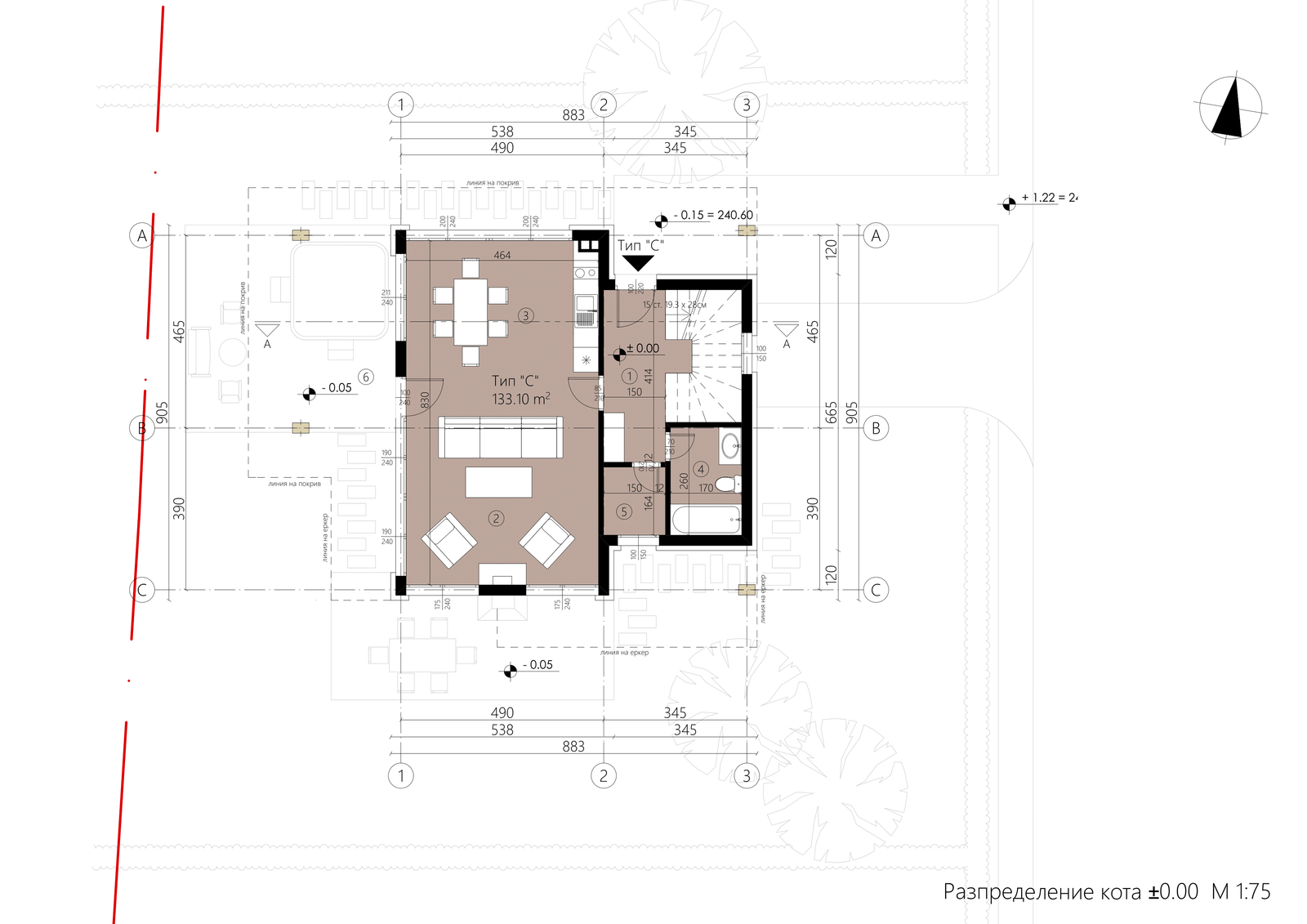
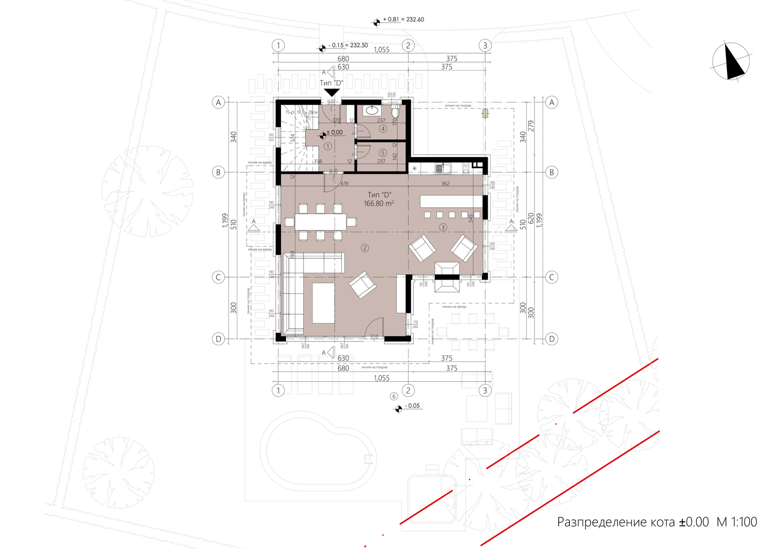
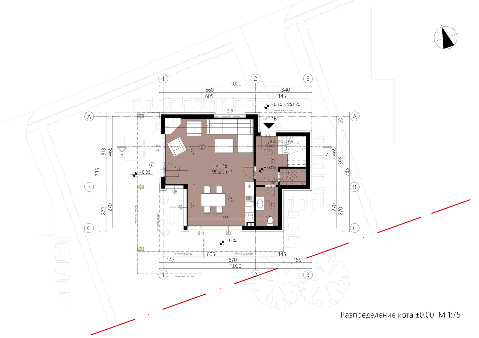
Проект от четири типа еднофамилни къщи с различна площ. Всяка разполага с двор и просторен изглед към язовир Студен кладенец.Ваканционна къща тип А е едноетажна с РЗП от 53кв.м – всекидневна с кухненска част, спалня, баня, склад и веранда. Ваканционна къща тип В е двуетажна с РЗП от 95кв.м и разполага със собсвено паркомясто– всекидневна с кухненска част и камина, две спални със собствени балкони, баня, склад и веранда с барбекю.Ваканционна къща тип C е двуетажна с РЗП от 128кв.м и разполага със собсвено паркомясто – всекидневна с кухненска част и камина, три спални, два балкона, две бани, склад и веранда с барбекю, и джакузи.Ваканционна къща тип D е двуетажна с РЗП от 166кв.м и най-луксозната – всекидневна с кухненска част с остров и камина, склад, четири спални, една със собсвена баня, а останалите с обща, всяка има собсвен балкон, веранда с барбекю, джакузи и басейн.

Вдъхновихме ви?