Детска градина “Изворче”
Площ:
2488 кв.м
Локация:
София, България
Фаза:
Идеен проект
Етап:
Незавършен
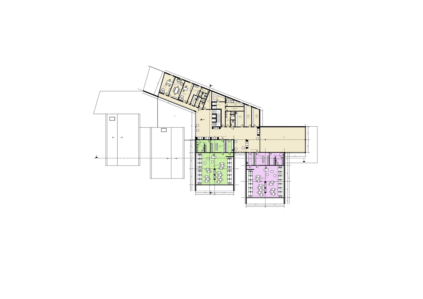
Проект за детска градина, намираща се в кв. Манастирски ливади-изток, град София. Обособени са 4 яслени и 2 детски групи, с прилежащи площадки за игра и допълнителна обща такава. В сградата са обособени още административни, комуникационни помещения, и мултифункционална зала. Средата е достъпна за хора в неравностойно положение и майки с колички. Всяка детска група и обвързана с цвят и наподобява къщичка, за ориентир на децата и лесно приспособяване към новата обстановка. Всяка площадка съответства и на цвета на прилежащата детска група – къщичка.












Вдъхновихме ви?
